- Nalazite se ovdje:
- Naslovnica
- PRODAJA NEKRETNINA
- Dubrovnik
- Stanovi
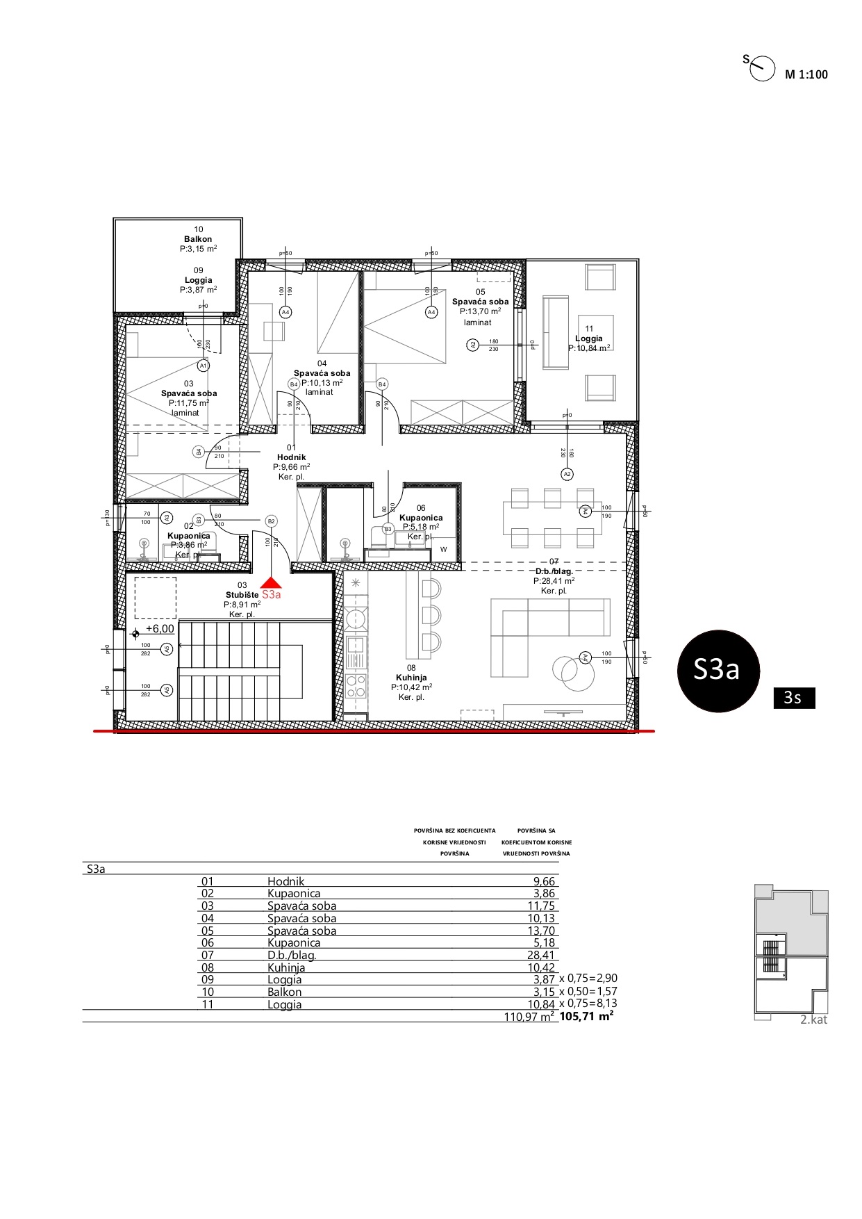
- PRILIKA !!! Stan 105,71 m2 u novogradnji | 3 spavaće sobe | 2 parkirna mjesta | Moguća podjela u 2 jedinice | SNIŽENA CIJENA | Dubrovnik okolica, Zvekovica
PRILIKA !!! Stan 105,71 m2 u novogradnji | 3 spavaće sobe | 2 parkirna mjesta | Moguća podjela u 2 jedinice | SNIŽENA CIJENA | Dubrovnik okolica, Zvekovica
Ukratko
- ID:
- S2347
- Cijena
- Na upit
- Tip nekretnine:
- Stanovi
- Lokacija:
- Dubrovnik
- Površina :
- 105,71 m2
- Broj spavaćih soba :
- 3
- Parking :
- 2
Opis nekretnine
- NOVOGRADNJA | Stan 105,71 m2 na poželjnoj lokaciji nadomak Cavtata
- 3. etaža dvojne stambeno-poslovne građevine
- Dnevni boravak s kuhinjom i blagovaonicom | 3 spavaće sobe | 2 kupaonice | 2 loggie
- * Pogodan za podjelu u 2 odvojene jedinice
- AB konstrukcija | Toplinska izolacija - kamena vuna
- PVC/ALU otvori | Rolete | Klima uređaji u dnevnoj i spavaćim sobama
- Kupaonice sa sanitarijama | Podno grijanje u kupaonicama | Ariston bojleri
- Mirna i ugodna pozicija s pogledom na Konavosko polje i okolni krajolik
- Atraktivna lokacija za stanovanje u blizini trgovine, pekarnice, mesnice, restorana, caffe bara, autobusne stanice, dječjeg i sportskog igrališta, frizerskih salona, teretane...itd
- Unutar par minuta vožnje do škole, vrtića, plaža, hotela, povijesne jezgre Cavtata...
- Očekivani početak izgradnje: ožujak 2026.
- Očekivani završetak izgradnje: 18 mjeseci od početka građenja
- Izvrsna opcija za rješenje stambenog pitanja | Pogodno i za dugoročno ili kratkoročno iznajmljivanje
- Stan se isporučuje po sistemu ''ključ u ruke''
Za više informacija molimo kontaktirajte:
+385 91 333 5480
+385 91 331 5480
Ova e-mail adresa je zaštićena od spambota. Potrebno je omogućiti JavaScript da je vidite.
